Living with Garage and seaview

The object is located on the west coast in La Pared
Town:
La Pared
Constr. Area:
94 m2
Plot:
316 m2
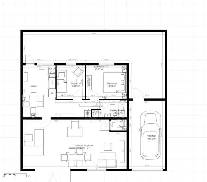
Room:
4 rooms: Living area, 2 bedrooms, kitchen, bathroom: with tub, toilet and washing machine, guest toilet.
Sales Price:
215.000 €
If you are interested in the adjacent
“CDI: High Warehouse with patio and parking spaces”
a new selling price would be possible after negotiation.
If you are interested in the adjacent
“CDI: High Warehouse with patio and parking spaces”
a new selling price would be possible after negotiation.
Half of the property was designed with living area and guest toilet.
In the second half is a larger and a smaller bedroom, a kitchen with dining table and a bathroom witg bathtub and washing machine. The exceptionally high room height is 4.30m. Adjacent to the building is a garage. Behind the house is an invisible patio.
A year ago, a new conditioning system - convertible heating as well as a pressurised water pump and with 3 water tanks was installed.
In the second half is a larger and a smaller bedroom, a kitchen with dining table and a bathroom witg bathtub and washing machine. The exceptionally high room height is 4.30m. Adjacent to the building is a garage. Behind the house is an invisible patio.
A year ago, a new conditioning system - convertible heating as well as a pressurised water pump and with 3 water tanks was installed.
